Zentrales Reihenmittelhaus mit zwei Wohneinheiten in St. Ingbert für Eigennutzer und Kapitalanleger
Objektart
Adresse
Objektdaten
Informationen
Ausstattung
Details
Dieses Reihenmittelhaus bietet die Möglichkeit zur Nutzung von zwei separaten Wohneinheiten und überzeugt zugleich durch seine zentrumsnahe Lage in St. Ingbert. Die Innenstadt ist fußläufig in etwa fünf Minuten erreichbar und bietet eine hervorragende Infrastruktur.
Im Erdgeschoss befindet sich eine renovierte und möblierte Wohneinheit. Diese bietet ein großzügiges Wohn- und Esszimmer mit offener Küche, ein Schlafzimmer, eine Ankleide sowie ein modernes Badezimmer mit Anschluss für die Waschmaschine.
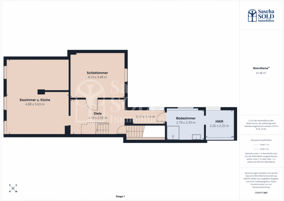
Die zweite Wohneinheit ist als Maisonettewohnung ausgeführt und erstreckt sich über das Ober- und Dachgeschoss. Von der Diele im Obergeschoss sind alle Räume bequem erreichbar. Auf dieser Etage befinden sich ein Schlafzimmer, ein Essbereich mit offener Küche sowie ein Badezimmer mit zusätzlichem Hauswirtschaftsraum. Die durchschnittliche Deckenhöhe beträgt hier ca. 2,20 m.
Eine Treppe führt von der Diele in das ausgebaute Dachgeschoss, das sich durch seine Helligkeit auszeichnet und sich ideal als großzügiger Wohnbereich nutzen lässt. Die vorhandene Dachgaube sorgt dabei für eine angenehme natürliche Belichtung.
Für Ihre Fahrzeuge stehen öffentliche, kostenfreie Stellplätze in unmittelbarer Nähe an der Straße zur Verfügung.
Im Laufe der Jahre wurden unter anderem folgende Modernisierungen und Instandhaltungsmaßnahmen durchgeführt:
o Erdgeschoss: Umbau und Kernsanierung der gesamten Etage (ca. 2022)
o Ober- und Dachgeschoss: Erneuerung der Laminatböden und der Elektrik (ca. 2022)
o Modernisierung der Heizungsanlage (ca. 2017)
Bei der Liegenschaft handelt es sich um zwei voneinander getrennte Wohneinheiten. Eine rechtliche Aufteilung nach dem Wohnungseigentumsgesetz liegt jedoch nicht vor.
Gebäude:
o Baujahr: ca. 1950
o Bauweise: Massivbauweise
o Dach: Satteldach mit Dachgaube
o Außenfassade: verputzt
o Fenster: Holz, Kunstoff, Aluminium, isolierverglast
(teilweise 90er Jahre, teilweise ältere, nicht feststellbare Baujahre)
o Heizung: Gastherme (Paradigma Modula NT, ca. 2017)
o Böden: Laminat, Fliesen
Grundriss:
o EG: Flur, Wohn- und Esszimmer, Küche, Bad, Ankleide, Schlafzimmer
o OG: Diele, Schlafzimmer, Bad, Hauswirtschaftsraum, Esszimmer, Küche
o DG: großer, offener Wohnbereich
Sanitär:
o EG: Bad mit Dusche, Waschbecken und WC
o OG: Bad mit Dusche, Waschbecken und WC
Diese Liegenschaft befindet sich in St. Ingbert-Mitte im Saarpfalz-Kreis (Saarland). Sie liegt an einer Hauptverkehrsstraße in einem gewachsenen Wohnumfeld mit überwiegend Reihenhäusern. Die Innenstadt von St. Ingbert ist in wenigen Gehminuten erreichbar. Eine Bushaltestelle mit Anbindung an die umliegenden Stadtteile befindet sich ebenfalls in unmittelbarer Nähe.
Die gute Verkehrsanbindung an die Autobahnen A6 und A8 unterstreicht die Lagequalität. Einkaufsmöglichkeiten, zentrale Infrastruktureinrichtungen sowie Naherholungsgebiete sind schnell erreichbar und tragen zu einem komfortablen Wohnumfeld bei.
Entfernungen zu wichtigen Punkten des täglichen Lebens:
o Bushaltestelle - ca. 60 m
o Supermarkt - ca. 400 m
o Stadtzentrum St. Ingbert - ca. 400 m
o Stadtpark - ca. 500 m
o Grundschule und KITA - ca. 900 m
o Gymnasium - ca. 900 m
o Bahnhof - ca. 1,3 km
Verkehrsanbindung:
o Autobahn A6 - ca. 2 km
o Autobahn A8 - ca. 5 km
Umliegende Städte und Einrichtungen:
o URSAPHARM-Arena (SV Elversberg) - ca. 5 km
o Universität des Saarlandes - ca. 8 km
o Flughafen Saarbrücken - ca. 9 km
o Saarbrücken (Zentrum) - ca. 12 km
o Homburg (Zentrum) - ca. 19 km
Bonitätsnachweis:
Auf Wunsch der Verkäufer findet eine Besichtigung ausschließlich mit Interessenten statt, die ihre Bonität nachgewiesen haben (z.B. mit einem Finanzierungszertifikat).
Käuferprovision:
Die Käuferprovision beträgt 3,57 % inkl. MwSt. vom notariell beurkundeten Kaufpreis verdient und fällig bei notarieller Beurkundung. Wir haben mit dem Verkäufer einen provisionspflichtigen Maklervertrag in gleicher Höhe abgeschlossen.
Hinweis zum Widerrufsrecht für Verbraucher:
Nach § 355 BGB hat der Verbraucher (gilt nicht für Unternehmer) ein 14-tägiges Widerrufsrecht gegenüber dem Unternehmer/Makler. Mit der Novellierung des Verbraucherrechts im Juni 2014 sind auch Maklerunternehmen verpflichtet, Kunden über ihre gesetzlichen Widerrufsrechte zu informieren. Zeitgleich mit Ihrer Anfrage via Email, Telefon, SMS oder Brief erhalten Sie von uns eine notwendige gesetzesgemäße Widerrufsbelehrung mit den entsprechenden Belehrungen.
Haftungsausschluss:
Alle Informationen basieren auf den Angaben des Eigentümers. Eine eigene Berechnung der Wohnfläche durch den Makler hat nicht stattgefunden. Die im Exposé angegebenen Wohn- und Nutzflächen sowie die dargestellten Grundrisse wurden nicht gemäß der Wohnflächenverordnung (WoFlV) eigenständig ermittelt. Sie basieren auf der digitalen 3D-Scan-Technologie der Giraffe360 Limited und stellen keine verbindliche Wohnflächenberechnung oder Architektenleistung dar. Für die Richtigkeit, Vollständigkeit und Maßhaltigkeit der Flächenangaben wird keine Gewähr übernommen. Dies gilt ebenso für die Angaben zum Energieausweis und zu den energetischen Eigenschaften, die ebenfalls auf den Daten des Eigentümers basieren und nicht eigenständig geprüft wurden. Angaben zu Heizungsanlagen, Technik oder sonstiger Ausstattung wurden ebenfalls nicht geprüft. Fotos, Videos, virtuelle Rundgänge, 3D-Darstellungen und Grundrisse dienen nur der Illustration, sind nicht maßstabgetreu und ersetzen keine persönliche Vor-Ort-Besichtigung oder Prüfung. Das Exposé sowie die darin gemachten Angaben in Wort, Bild und Zahlen stellen keine Beschaffenheitsvereinbarung dar. Wert- und Maßangaben sind lediglich Circa-Angaben. Es hat keine Einsicht in die Bauakte stattge-funden. Kaufinteressenten sind verpflichtet, das Objekt selbst zu besichtigen und alle relevanten Unterlagen eigenständig zu prüfen. Es wird keine Gewähr für die baurechtliche Zulässigkeit der Nutzung oder für vorhandene Genehmigungen übernommen. Kaufinteressenten müssen die Bebauungspläne und das Baurecht selbst prüfen. Bekannt gewordene Fehler werden umgehend korrigiert. Der Makler übernimmt keine Haftung für die Richtigkeit und Vollständigkeit der Angaben. Änderungen, Irrtümer und Zwischenverkauf bleiben vorbehalten.
Energieausweis (Verbrauchsausweis)
126,50 kWh / (m²*a) Energieverbrauchskennwert
126,50 kWh / (m²*a) Energieverbrauchskennwert
126,50 kWh / (m²*a) Energieverbrauchskennwert
Weitere Informationen
| Wesentlicher Energieträger | Gas |
| Energieausweis Ausstelldatum | 2022-03-29 |
| Energieausweis gültig bis | 29.03.2032 |
| Energieausweis Jahrgang | ab dem 1.5.2014 |
| Energieausweis Werteklasse | D |
| Energieausweis Baujahr | 1950 |
| Energieausweis Gebäudeart | Wohngebäude |
| Befeuerung | Gas |
